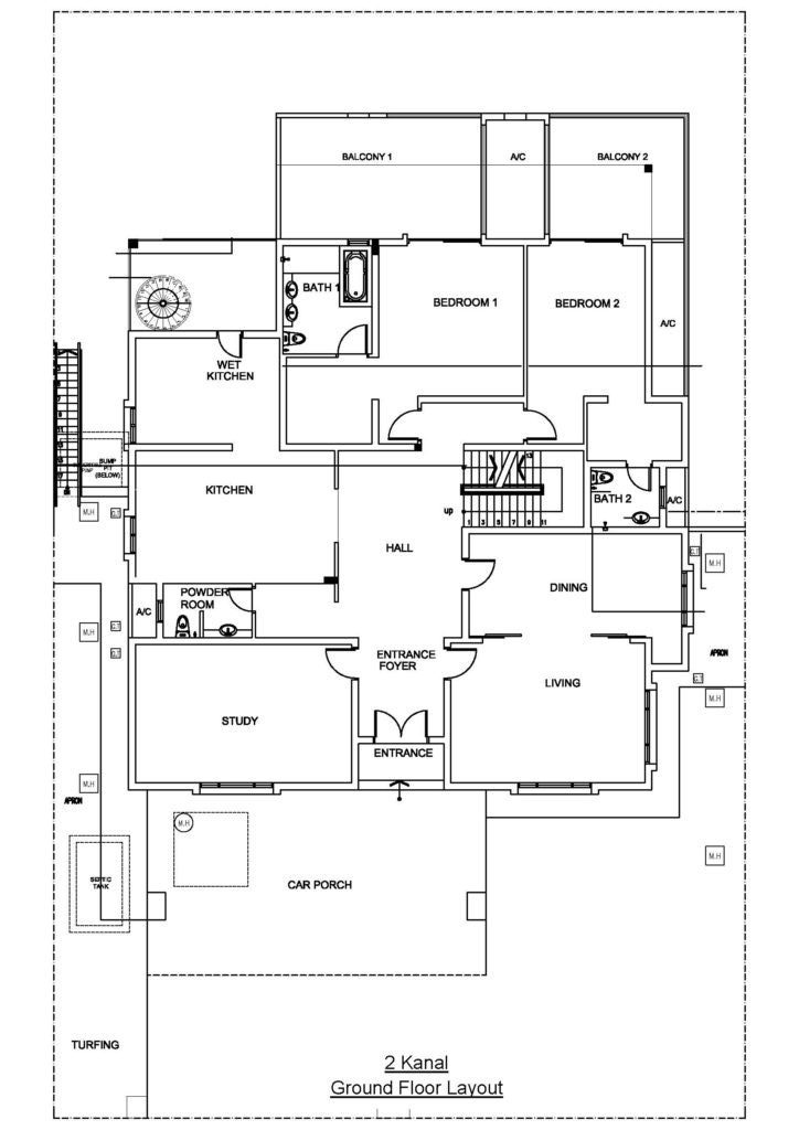
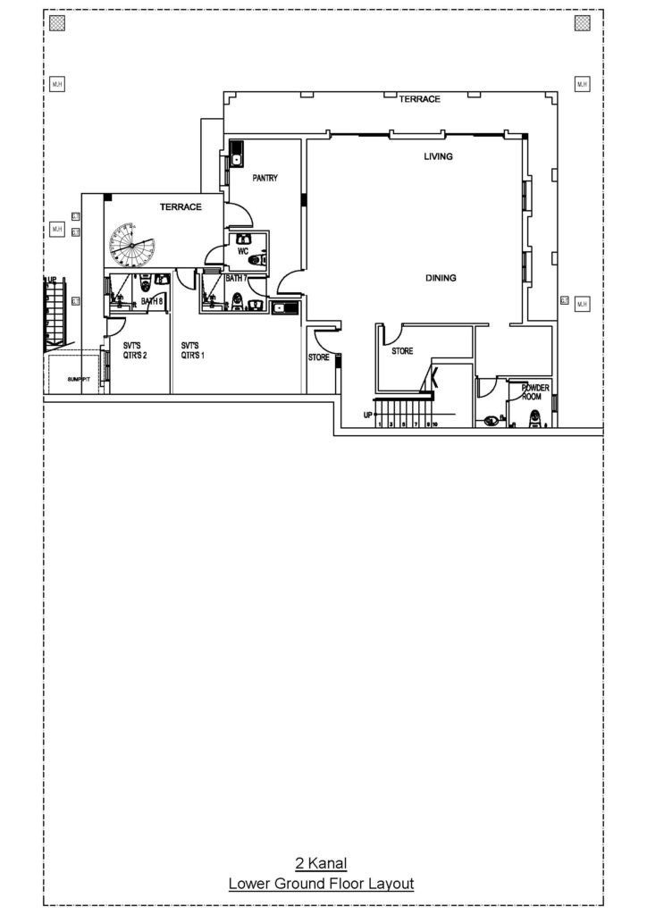
Phase 1­­- 2 Kanal

1-Kanal golf view villas are designed to offer the luxury of space and an unobstructed view of the golf course. The inviting semi-open spaces, the deck area on lower ground level and the al-fresco dining area on the roof terrace are intentionally designed to provide scenic views of the lush green golf course.

Once you enter the house, the main void at the entrance connects the first floor with ground floor visually. The house plan is beautifully designed into semi-public and private zones.

Key Features

Picture Gallery

Checkout our elite vibe & ambiance.

Standard

Floor Plans

Related Projects

Explore the world of DHA RAYA